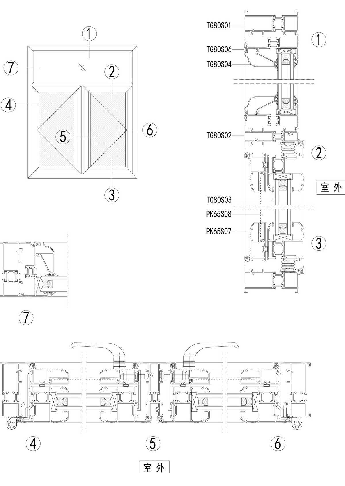
• TG80S系列隔热双外开窗纱一体

TG80S系列隔热双外开窗纱一体

系列产品介绍

  • 两轨提升推拉门,配置6+12A+6中空玻璃;

  • 型材的腔体设计科学合理、截面大、强度足;

  • 门扇多道密封,并配装缓冲防撞垫,使门扇启闭更轻巧;

  • 适用范围:阳台、厅门、海景房,会所、办公场所。

  • TG80S系列隔热双外开窗纱一体